Home
Work
The world in my pen
Home
Work
The world in my pen
guilherme scarante
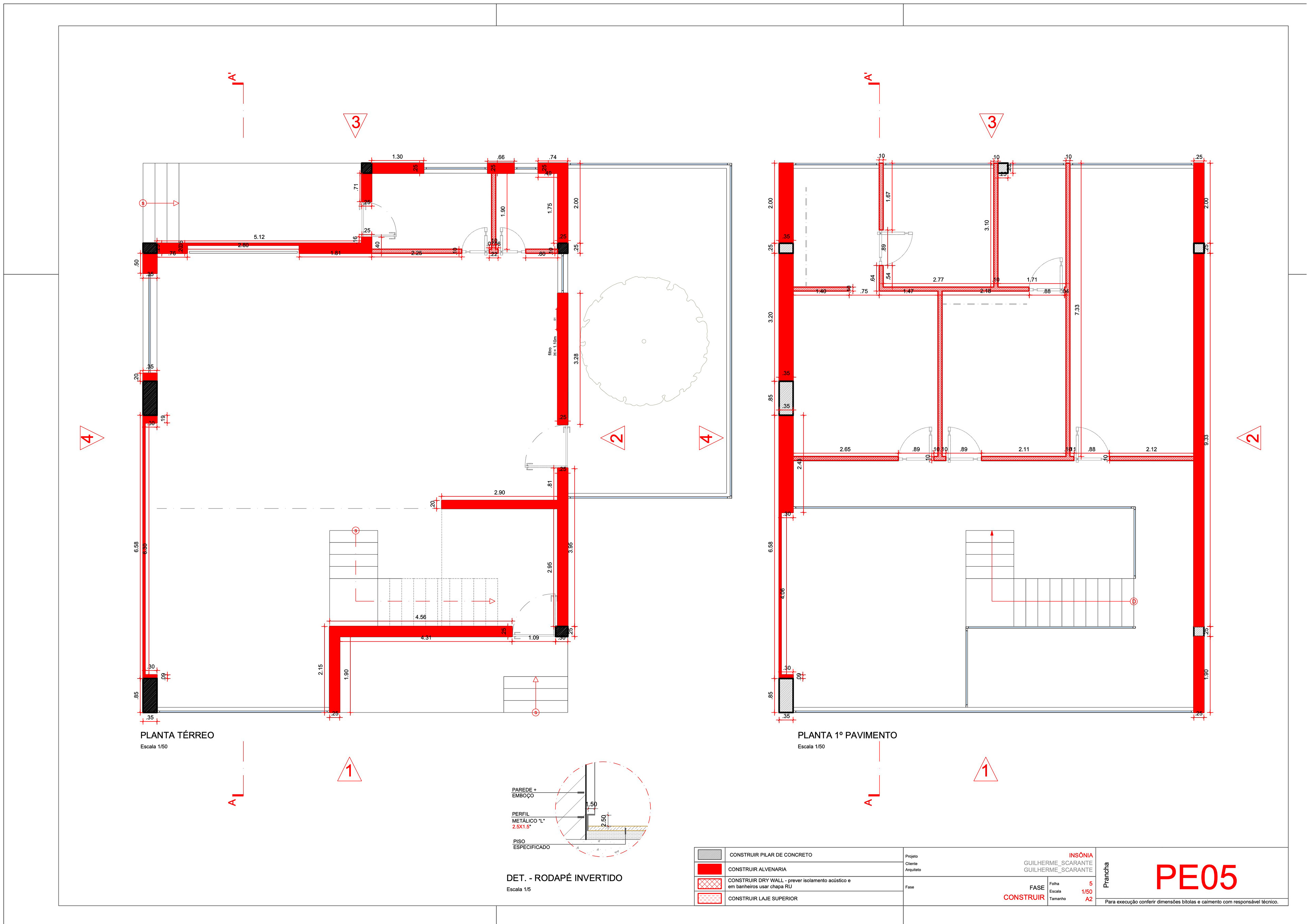
Insônia
home Concept
The project is called Insônia it's a house in Cornwall, england
home page
You may also like
edifício amazonas
2023
Swan
2025
Mesa Bacate
2021
Casa Tukã
2025
Butterfly Office
2024
casa nara leão
2023
↑
Back to Top